Meer lokale werkgelegenheid en sterkere economie
Sterk ondernemen, sterk Steenbergen
De Volkspartij wil de economische kracht van Steenbergen versterken. Ondernemers zijn de motor van onze gemeente. Zij zorgen voor werk, innovatie en toekomstperspectief. Daarom verdie-nen zij ruimte, vertrouwen en duidelijke regels.
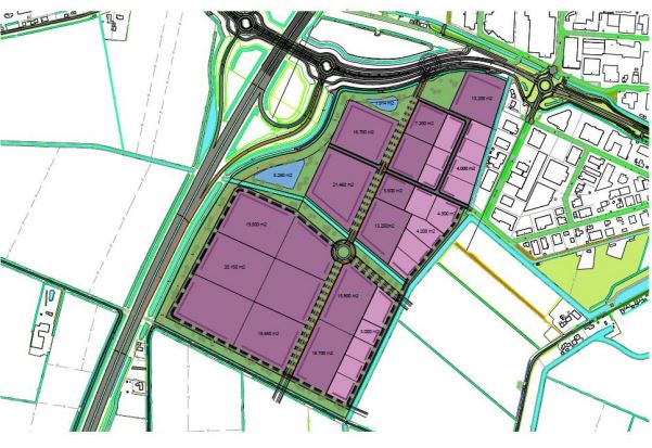
Met toplocaties zoals Reinierpolder 3 en het bedrijventerrein langs de A4 heeft Steenbergen alles in huis om duurzaam te groeien.
Kennis en kwaliteit
Wij kiezen bewust voor kwaliteit. Steenbergen moet aantrekkelijk zijn voor innovatieve bedrijven die waarde toevoegen aan onze lokale economie en banen creëren voor onze eigen inwoners. Onze focus ligt op sectoren als energietransitie, drones en sensortechnologie, agritech en zorginnovatie.
Bedrijven die vooral leunen op grootschalige arbeidsmigratie voor laaggeschoold werk passen daar niet bij.
Maatwerk voor kernen
Voor winkelgebieden is maatwerk per kern nodig, met behoud van leefbaarheid, sterke weekmarkten en basisvoorzieningen dichtbij huis. Ook recreatie en toerisme bieden kansen: onze havens, campings en buitengebied verdienen betere promotie en actieve ondersteuning.
Onmisbare agrarische sector
De agrarische sector blijft onmisbaar. Duurzame innovatie krijgt ruimte, uitbreiding van intensieve veehouderij niet. Lokale ondernemers worden betrokken bij gemeentelijke inkoop.
Minder praten, meer doen: Goede ideeën verdienen snelle, positieve begeleiding. Zo bouwen we samen aan een sterk en toekomstbestendig Steenbergen.
